MENU
Türkçe
English
Kurumsal
Hakkımızda
Kalite Belgeleri
Sosyal Sorumluluk
Etkinlikler
Haberler
Fuarlar
Faaliyet ve Üretim Alanları
Asansör Kat Kapısı
Asansör Kabin Kapısı
Asansör Katlanır Kapılar
Otomotiv Yan Sanayi
CNC Lazer Kesim
CNC Abkant Büküm
Basında Biz
Fuar Görüntüleri
TV Röportaj ve Reklamlar
Gazete Röportaj ve Reklamlar
Dergi Röportaj ve Reklamlar
İnsan Kaynakları
İK Stratejimiz
Birlikte Çalışmak İçin
Açık Pozisyonlar
Bize Ulaşın
İletişim Bilgileri
İletişim Formu
Üretimlerimiz
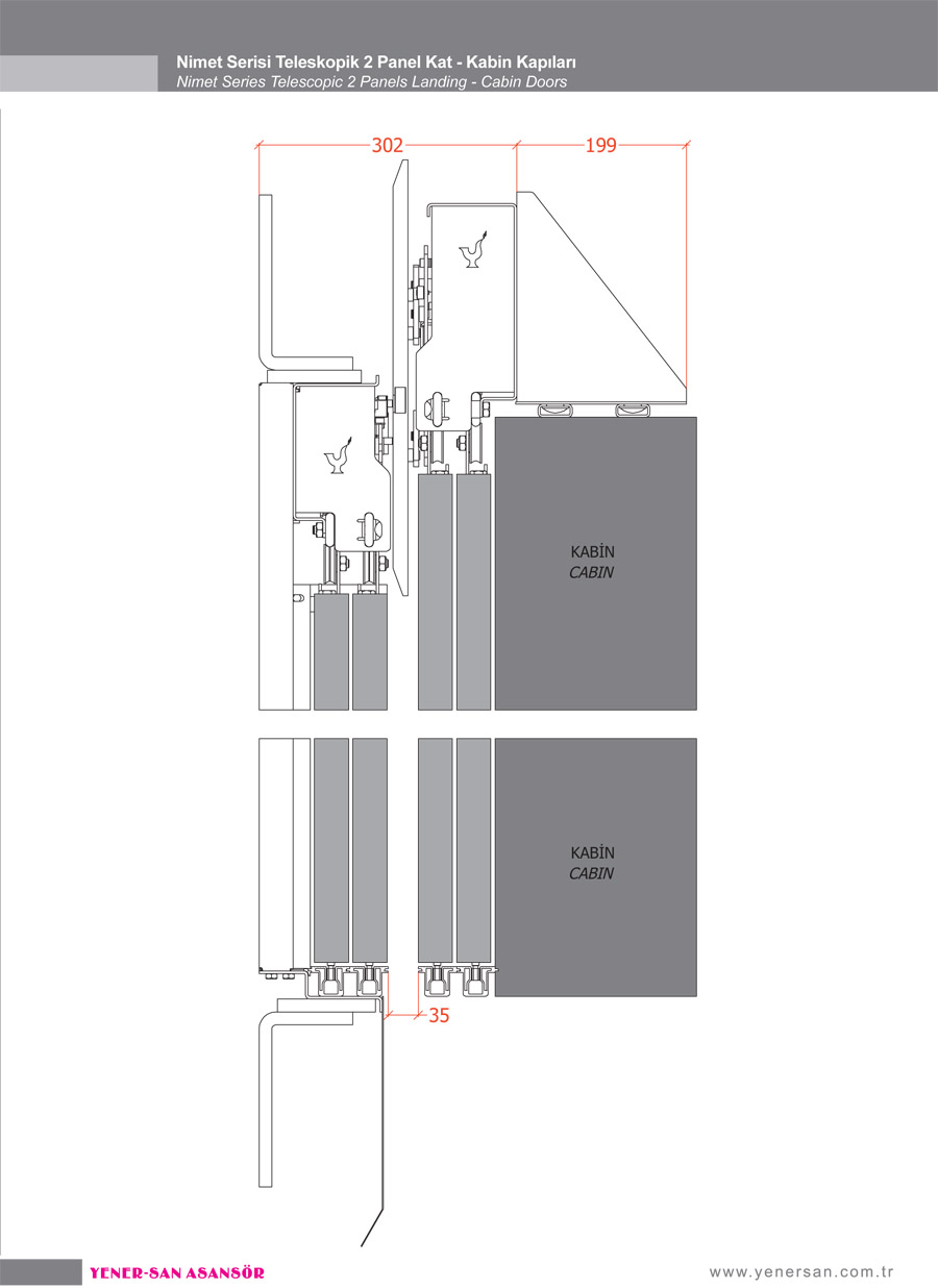
Teleskopik 2 Panel Kabin Kapısı
Anasayfa
Üretimlerimiz
Teleskopik 2 Panel Kabin Kapısı
MENU
Teleskopik 2 Panel Kabin Kapısı
Merkezi 2 Panel Kabin Kapısı
Teleskopik 3 Panel Kabin Kapısı